✔️ Mẫu nhà 2 tầng có lửng đẹp với mã số TNK 148 được Kiến trúc TN thiết kế cho chị Emily tại thành phố Mỹ Tho, tỉnh Tiền Giang, ngôi nhà gác lửng 2 tầng này có 5 phòng ngủ, với phong cách hiện đại, đơn giản, nhưng không kém phần sang trọng, xin mời cả nhà tham khảo!
Cả nhà nhấn vào video phía trên để xem chi tiết nhé
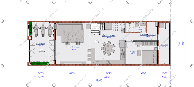
MẶT BẰNG BỐ TRÍ CÔNG NĂNG
MẶT BẰNG TẦNG 1
MẶT BẰNG TẦNG 2
MẶT BẰNG TẦNG 3
ANH CHỊ THAM KHẢO GIÁ XÂY DỰNG Ở CUỐI TRANG
*********************************
ĐỂ THI CÔNG THEO MẪU, ANH CHỊ CÓ THỂ MUA CÁC GÓI BẢN VẼ SAU:
GÓI 1. BẢN VẼ CƠ BẢN : GIÁ 500.000đ
- Hồ sơ bao gồm: phối cảnh mặt tiền, các bản vẽ chi tiết mặt bằng kiến trúc, mặt đứng (mặt tiền), mặt cắt , chi tiết trần và bố trí đèn, chi tiết kích thước cửa đi cửa sổ, khung kính...các chi tiết trang trí kiến trúc.
- Thành phần file bao gồm : Hình ảnh 3D mặt tiền, PDF, Autocad, Sketchup (thô).
- Gói bản vẽ cơ bản KHÔNG bao gồm thiết kế kết cấu sắt thép và điện nước. Nếu Anh Chị cần bản vẽ chi tiết thi công đầy đủ thì mua gói 2 nhé.
- Anh Chị có thể xem qua thành phần bản vẽ GÓI 1 ở video phía dưới (lưu ý video là thành phần mẫu, không phải bản vẽ của mẫu nhà đang xem)
GÓI 2. BẢN VẼ CHI TIẾT THI CÔNG: GIÁ 3.000.000đ
- Hồ sơ bao gồm: phối cảnh mặt tiền, các bản vẽ chi tiết mặt bằng kiến trúc, bản vẽ mặt đứng, bản vẽ mặt cắt (mặt tiền) , chi tiết trần và bố trí đèn, chi tiết kích thước cửa đi cửa sổ, khung kính...các chi tiết trang trí kiến trúc.
- Các bản vẽ chi tiết kết cấu sắt thép, chi tiết móng và các chi tiết cấu kiện khác.
- Bản vẽ hệ thống cấp điện, cấp và thoát nước.
- Thành phần file bao gồm : Hình ảnh 3D mặt tiền, PDF, Autocad, Sketchup (thô).
- Anh Chị có thể xem qua thành phần bản vẽ GÓI 2 ở video phía dưới (lưu ý video là thành phần mẫu, không phải bản vẽ của mẫu nhà đang xem)- Các bản vẽ chi tiết kết cấu sắt thép, chi tiết móng và các chi tiết cấu kiện khác.
- Bản vẽ hệ thống cấp điện, cấp và thoát nước.
- Thành phần file bao gồm : Hình ảnh 3D mặt tiền, PDF, Autocad, Sketchup (thô).
Kiến trúc TN không hỗ trợ bản vẽ xin phép xây dựng. Anh Chị vui lòng liên hệ cơ quan làm bản vẽ xin phép ở địa phương, và nhờ họ làm bản vẽ xin phép theo đúng bản vẽ thiết kế của Kiến trúc TN. Kiến trúc TN xin lỗi vì sự bất tiện này!
Bản vẽ sẽ không đóng mộc đỏ (Con Dấu).
Bản vẽ sẽ không đóng mộc đỏ (Con Dấu).
*********************************
LIÊN HỆ THIẾT KẾ MỚI THEO YÊU CẦU CỦA BẠN:
- Anh Chị có nhu cầu thiết kế bản vẽ theo ý mình, có thể xem qua đơn giá thiết kế của Kiến trúc TN bằng cách nhấn vào nút bên dưới:
- Nếu Anh Chị đồng ý giá thiết kế, có thể nhắn tin qua Zalo.0908822191 để được Kiến trúc TN tư vấn kỹ hơn.
*********************************
CHI PHÍ DỰ TRÙ XÂY DỰNG HOÀN CHỈNH CÔNG TRÌNH:
Diện tích tính phí xây dựng: 380 mét vuông
Lưu ý: diện tích tính phí xây dựng sẽ tính thêm hệ số của móng và mái nhà, các phần này đều phải tốn kinh phí vật tư và nhân công---------
Chi phí dự trù hoàn chỉnh công trình
từ 1.975 đến 2.356 triệu đồng
Lưu ý:
Chi phí trên là chi phí xây dựng phần nhà, kể cả sơn nước, cửa, bếp, ốp lát....Chi phí không tính vật dụng nội thất như giường, tủ, bàn, ghế....
Giá trị trên được tính trên mặt bằng chung, sẽ còn tăng hoặc giảm theo thời điểm, đơn giá của thầu hoặc tùy theo vùng miền, đặc tính đất...
Giá trên được cập nhật vào tháng 11.2024 - Vào các thời điểm khác nhau sẽ có giá khác nhau.
Chi phí trên là chi phí xây dựng phần nhà, kể cả sơn nước, cửa, bếp, ốp lát....Chi phí không tính vật dụng nội thất như giường, tủ, bàn, ghế....
Giá trị trên được tính trên mặt bằng chung, sẽ còn tăng hoặc giảm theo thời điểm, đơn giá của thầu hoặc tùy theo vùng miền, đặc tính đất...
Giá trên được cập nhật vào tháng 11.2024 - Vào các thời điểm khác nhau sẽ có giá khác nhau.
*********************************






THEO DÕI CHÚNG TÔI